Lot 426 ELK COUNTRY LOG CABIN By ACS Log Build
This is one of the most amazing donations seen at Elk Camp! ASC has not only donated a log cabin, but this log cabin is made from high-quality nineinch cedar logs that will last for centuries. ACS has also included a set of blueprints valued at more than $5,000 as well as the stain, log screws, tape and calk to assemble the cabin. Pella has even donated the windows and doors. This donation package is unprecedented. The buyer can have the materials shipped to them and assembled by their local builder or contract ACS to deliver and build the cabin. Craig Stewart with ACS will be exhibiting at Elk Camp and will be available for any questions regarding shipping and assembly. Craig Stewart, owner of ACS Log Build, has been a general contractor and builder for 23 years and has erected quality residential and commercial log projects all over the United States. ACS has contributed more than $36,000 to the RMEF Partners in Conservation program.
Note:
Upgrades available for cabin specs, windows anddoors
INCLUDED:
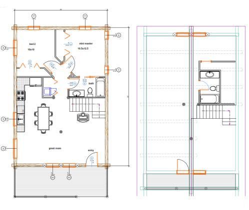
• 1,494 total square feet
• Nine-inch cedar log package
• Dimensions and square feet: 24’x 36’; main 864 sq-ft; loft 630 sq-ft; balcony 4’x 24’; front deck 8’x 24’
• A full set of blueprints with engineer stamp for anywhere in continental United States
• A unique floor plan designed for RMEF
• Choice of double tongue-and-grove, Swedish-coped, or 6’x 10’
• Tuscan timber logs with hand peeled surface
• Pre-cut package with all notches and door/window openings
• Douglas fir 12” log loft system
• Douglas fir 12” ridge beam
• Cedar log stair parts
• Cedar log railing for interior loft and exterior balcony and 8’ x 24’ front deck with 9” deck, balcony and loft posts
• Post and beam great room wall 12” cedar posts
• Post and beam rear gable with 12” cedar logs
• Solid log gables of matching log
• Pella windows (vinyl), Pella patio door (wood clad with hardware),
• Pella front door composite 9 light with small window
• The logs will be milled when you need them so they are fresh (with notice)
• Stain color of your choice
• FOB: Chico, CA
Partially Donated By:
ACS Log Build, Craig Stewart, Overland Park, KS
(913) 302-8531, www.acslogs.com, Booth #653
Pella, www.pella.com
Note:
Upgrades available for cabin specs, windows anddoors
INCLUDED:
• 1,494 total square feet
• Nine-inch cedar log package
• Dimensions and square feet: 24’x 36’; main 864 sq-ft; loft 630 sq-ft; balcony 4’x 24’; front deck 8’x 24’
• A full set of blueprints with engineer stamp for anywhere in continental United States
• A unique floor plan designed for RMEF
• Choice of double tongue-and-grove, Swedish-coped, or 6’x 10’
• Tuscan timber logs with hand peeled surface
• Pre-cut package with all notches and door/window openings
• Douglas fir 12” log loft system
• Douglas fir 12” ridge beam
• Cedar log stair parts
• Cedar log railing for interior loft and exterior balcony and 8’ x 24’ front deck with 9” deck, balcony and loft posts
• Post and beam great room wall 12” cedar posts
• Post and beam rear gable with 12” cedar logs
• Solid log gables of matching log
• Pella windows (vinyl), Pella patio door (wood clad with hardware),
• Pella front door composite 9 light with small window
• The logs will be milled when you need them so they are fresh (with notice)
• Stain color of your choice
• FOB: Chico, CA
Partially Donated By:
ACS Log Build, Craig Stewart, Overland Park, KS
(913) 302-8531, www.acslogs.com, Booth #653
Pella, www.pella.com
open_in_full